Modern, egyszintes új építésű ikerház Maroshegy kertvárosában
95.990.000 Ft
Eladó
Kép
Sorház, ikerház, házrész Alapterület: 93 m 2 Szobák száma: 3

Ingatlan bemutatása

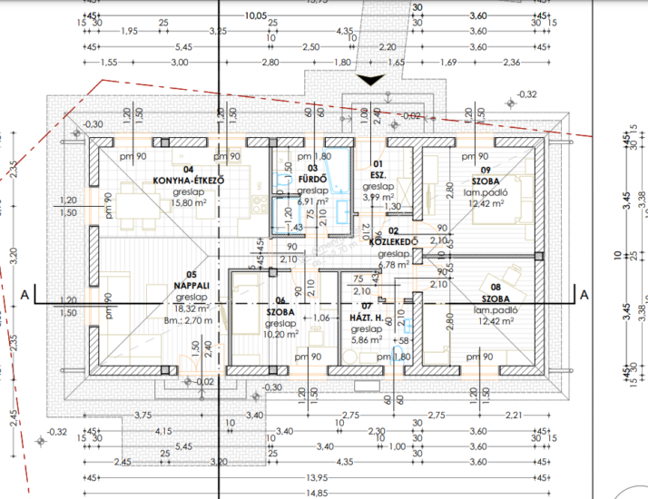
Maroshegyen, nyugodt kertvárosi övezetben kínálunk eladásra egy modern, új építésű ikerházat, amely ideális választás családok számára. Az ingatlan 93 m² hasznos alapterülettel rendelkezik, egyszintes kialakítású, praktikus elrendezéssel. A tágas, amerikai konyhás nappali étkezővel közvetlen kapcsolatban áll a 15 m²-es terasszal, amely kiváló helyszíne a pihenésnek és a családi összejöveteleknek. A lakótérben három külön nyíló szoba, egy fürdőszoba WC-vel, valamint egy külön háztartási helyiség kapott helyet.

Az ikerház téglaépítésű, 15 cm-es hőszigeteléssel ellátva, energiahatékony megoldásokkal. A fűtést korszerű hőszivattyús padlófűtés biztosítja, a komfortérzetet pedig háromrétegű, hőszigetelt nyílászárók növelik, redőnnyel és szúnyoghálóval felszerelve. Az ingatlanhoz 500 m²-es, önálló használati megosztású telek tartozik, udvari beállási lehetőséggel. A telek összközműves, a gáz igény szerint, a kivitelezés során kerül bekötésre. A tervezett átadás 2026 őszén várható, így a leendő tulajdonos még időben tervezhet egy korszerű, hosszú távon is értékálló otthonnal.

A környék elsősorban családi házakkal beépített, alacsony forgalmú utcaként ismert. A közelben óvoda, iskola, bevásárlási lehetőségek és tömegközlekedés is könnyen elérhető, így a mindennapi élet kényelmesen szervezhető. Kiváló választás azok számára, akik a város közelségét, mégis a kertvárosi nyugalmat keresik.

Ingatlan paraméterei

Típusa
Sorház, ikerház, házrész
Teljes ár
95.990.000 Ft
Négyzetméter ár
955.124 Ft / m2
Telekméret
500
Méret
93 m2
Erkély / Terasz mérete
15 m2
Építés éve
2026
Szobák száma
3
Fürdő és WC
egy helyiségben
Falazat
Tégla
Állapot
Újépítésű
Emeletek száma
Földszint
Parkolás
udvari beálló
Erkély
Van
Kert kapcsolatos
Igen
Fűtés
padlófűtés

Orsolya

Ingatlan referens

Telefonszám

+36 70 575 7510
Írjon az értékesítőnek