Móricz Zsigmond utca 31. Projekt
195.000.000 Ft
Eladó
Kép
Lakás

Ingatlan bemutatása

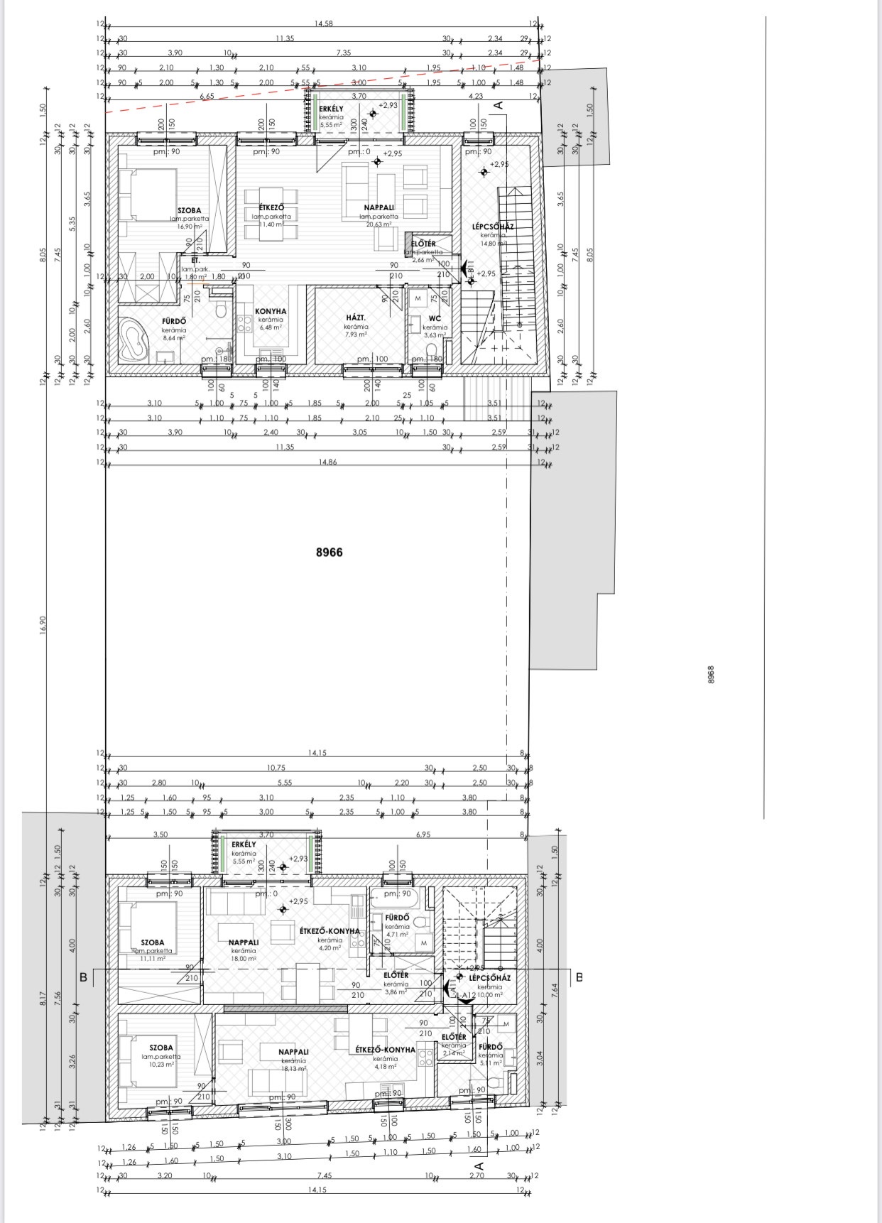
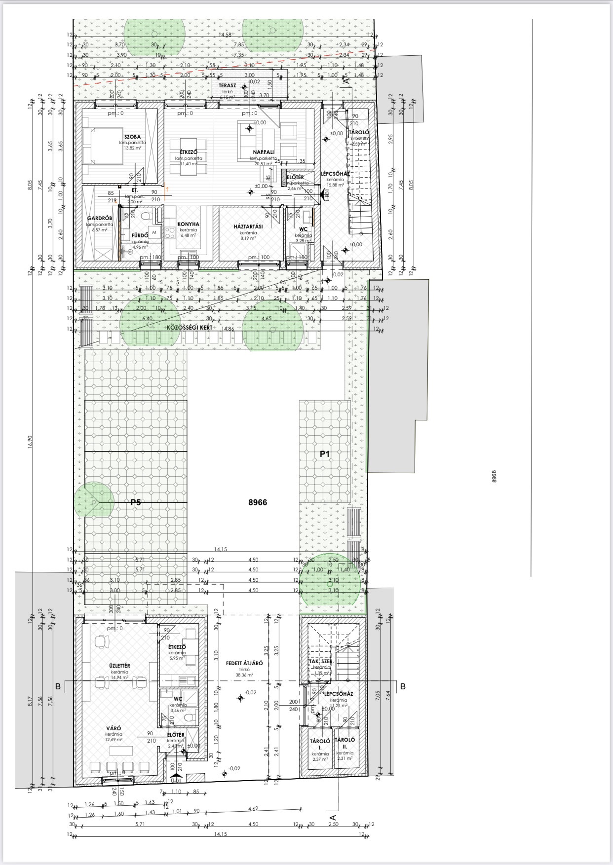
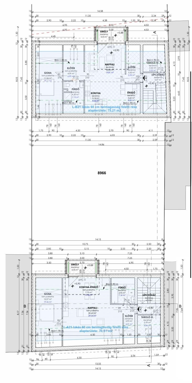
Székesfehérvár egyik kiváló adottságokkal rendelkező, csendes és zöldövezeti részén, a Móricz Zsigmond utcában kínálunk megvételre egy teljes egészében előkészített, 7 lakásos társasház-fejlesztési projektet, építési engedéllyel. A lehetőség kifejezetten olyan befektetők és fejlesztők számára ideális, akik egy átgondolt koncepció mentén, már előkészített műszaki és építészeti háttérrel rendelkező beruházást keresnek, minimalizált előkészítési kockázattal és gyors piacra lépési lehetőséggel.

 

A projekt egy két épületből álló lakóház megvalósítását tartalmazza, összesen 7 egységgel, amelyből 6 lakás és 1, igény szerint üzletként vagy lakásként hasznosítható földszinti ingatlan kerül kialakításra. A koncepció egyik legnagyobb előnye a tudatos méretezés: a lakások a jelenlegi piaci kereslethez igazodnak, jól kiadható és könnyen értékesíthető mérettel és elrendezéssel, így a projekt kiválóan alkalmas akár egyben történő hasznosításra (bérbeadás), akár lakásonkénti értékesítésre.

 

A lokáció erős bérlői és vásárlói keresletet biztosít: a belváros közelsége mellett a nyugodt, kertvárosias környezet kifejezetten vonzó célcsoportok – fiatal párok, kis családok és egyedülállók – számára. A projekt ennek megfelelően világos, jól átszellőztethető, amerikai konyhás nappalival kialakított lakásokat tartalmaz, több esetben terasszal vagy kertkapcsolattal, amelyek a mai piacon kiemelten értékesíthető és bérbeadható adottságok.

 

A kivitelezés azonnal indítható, az átadás még ugyanazon év végére ütemezhető, ami rövid fejlesztési ciklust és gyors megtérülési lehetőséget biztosít. A projekt lehetőséget ad arra is, hogy az új tulajdonos a belső kialakítást részben saját célpiacához igazítsa, ezáltal tovább növelve az ingatlanok piaci értékét és hozamát.

 

Ez nem csupán egy telek vagy terv, hanem egy komplexen átgondolt, piacképes fejlesztési csomag, amely azonnal átvehető és megvalósítható. Ideális választás azok számára, akik nem a nulláról szeretnének indulni, hanem egy kész koncepcióval rendelkező, jól értékesíthető projektet keresnek Székesfehérvár egyik keresett részén.

 

Amennyiben érdekli a teljes projekt megvásárlása, és szeretne részletes dokumentációt, terveket vagy személyes egyeztetést, készséggel állunk rendelkezésére.

Ingatlan paraméterei

Típusa
Lakás
Teljes ár
195.000.000 Ft
Telekméret
604
Építés éve
2026
Fürdő és WC
egy helyiségben
Falazat
Tégla
Állapot
Új
Emeletek száma
2
Parkolás
udvari beálló
Kilátás
Udvari

Bettina

Ingatlan értékesítő

Telefonszám

+3670 575 7910
Írjon az értékesítőnek