Prémium minőség, modern technológia – új otthonok Öreghegyen
170.000.000 Ft
Eladó
Kép
Ház Alapterület: 133 m 2 Szobák száma: 4

Ingatlan bemutatása

Székesfehérváron, Öreghegyen kínálunk megvételre három darab, új építésű, önálló családi házat, magas műszaki tartalommal és modern, letisztult megjelenéssel. Az ingatlanok egymáshoz hasonló kialakításúak, ugyanakkor különálló épületek, eltérő telekméretekkel, így mindenki megtalálhatja a számára ideális választást.

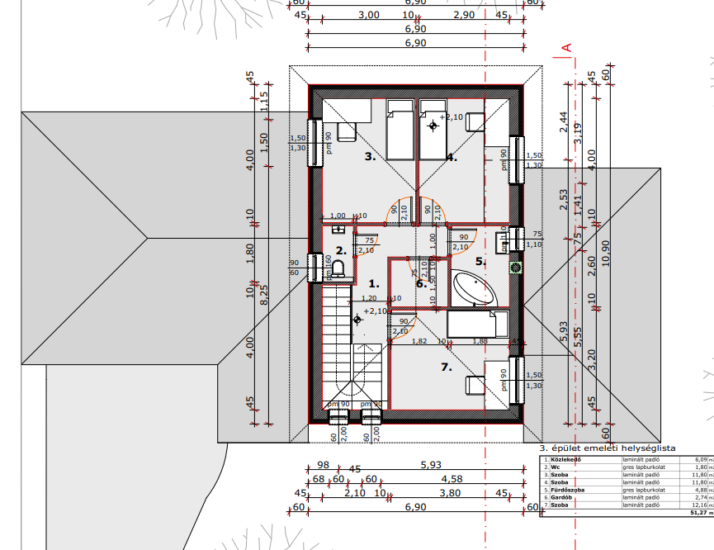
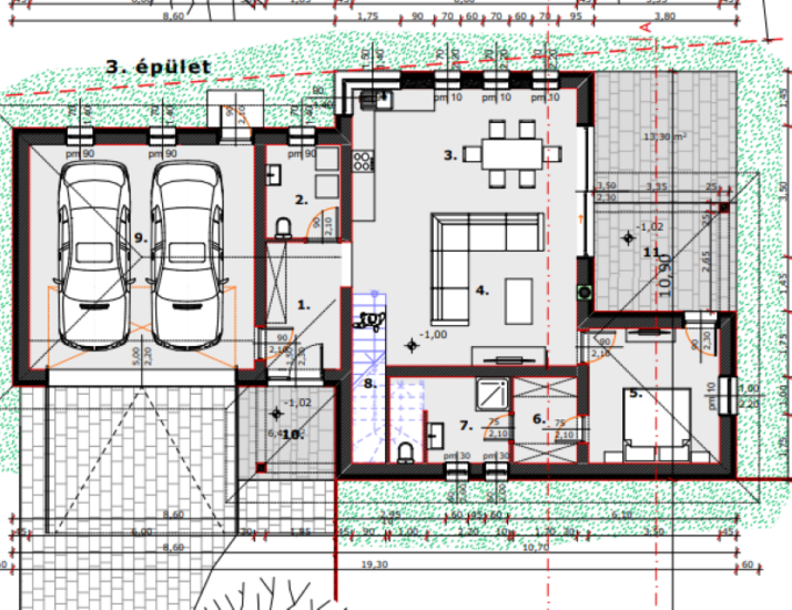
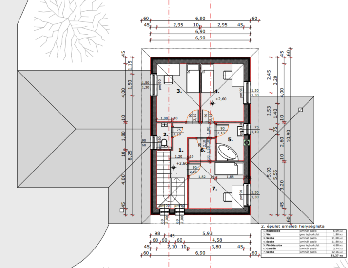
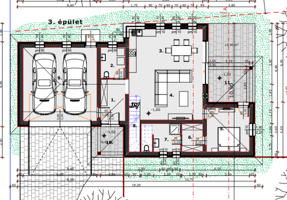
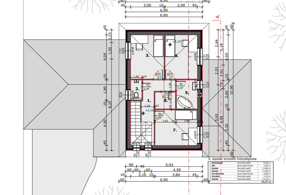
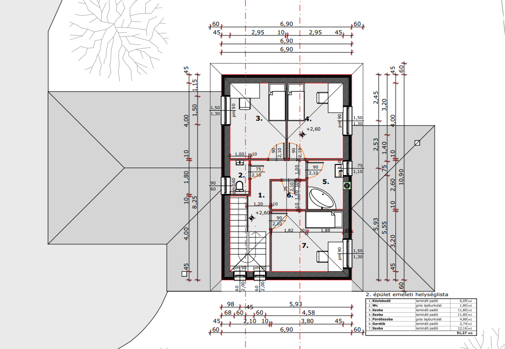
A kétszintes házak nettó 133,62 m² lakótérrel rendelkeznek, amelyet egy 36 m²-es garázs, valamint egy 24,32 m²-es terasz egészít ki (ebből 11,02 m² fedett). A jól átgondolt alaprajznak köszönhetően a földszinten egy tágas, világos nappali–étkező–konyha tér, egy külön hálószoba gardróbbal, fürdőszoba és háztartási helyiség található, míg az emeleten további három hálószoba, gardrób, fürdőszoba és külön WC biztosít kényelmes életteret akár nagyobb család számára is.

Az ingatlanok korszerű, energiahatékony megoldásokkal épülnek: a fűtést levegő–víz hőszivattyús rendszer biztosítja, padlófűtéssel, szintenként külön szabályozással. A kiváló hőszigetelésről 15 cm-es homlokzati szigetelés és modern falazati rendszer gondoskodik, míg a prémium minőségű, háromrétegű nyílászárók elektromos redőny előkészítéssel készülnek. A házak műszaki tartalma magában foglalja többek között a klíma előkészítést (5 helyiségben), riasztó- és kamerarendszer kiállásokat, kaputelefon előkészítést, valamint napelem és elektromos autótöltő lehetőségét is.

A belső kialakítás során a praktikum és az esztétika egyaránt érvényesül: a lakóterekben parketta, míg a vizes helyiségekben és a garázsban minőségi kerámia burkolatok készülnek. A burkolatok és szaniterek egy része még választható, így az új tulajdonos saját ízlésére szabhatja otthonát.

A három ingatlan különböző méretű telkeken helyezkedik el.

Az ingatlanok ára:

1. ház:  170.000.000 Ft

2. ház:  170.000.000 Ft

3. ház: 175.000.000 Ft

A telkek rendezettek, az utcafronton kerítéssel, motoros kapuval és térkövezett beállóval készülnek, a házak körül kialakított járdákkal.

Az ingatlanok csendes, zsákutcában helyezkednek el, ami garantálja a nyugodt, biztonságos lakókörnyezetet, minimális átmenő forgalommal. A környék kiváló infrastruktúrával rendelkezik: a közelben megtalálhatóak bevásárlási lehetőségek, iskola, óvoda, valamint könnyen és gyorsan elérhető Székesfehérvár belvárosa is. A zöldövezeti hangulat és a városi kényelem ideális egyensúlyt teremt mindennapi életéhez.

Ingatlan paraméterei

Típusa
Ház
Teljes ár
170.000.000 Ft
Négyzetméter ár
1.172.414 Ft / m2
Telekméret
401
Méret
133 m2
Erkély / Terasz mérete
24 m2
Építés éve
2026
Szobák száma
4
Egész szobák száma
4
Fürdő és WC
külön és egyben is
Falazat
Tégla
Állapot
Újépítésű
Emeletek száma
2
Parkolás
Benne van az árban
Kert kapcsolatos
Igen
Kilátás
Udvari
Fűtés
hőszivattyú

Nóra

Ingatlan referens

Telefonszám

+3670 575 7510
Írjon az értékesítőnek